在“修改標注樣式”窗口的“調整”頁面上將“標注特性比例”選成“使用全局比例”,并將比例設成圖紙比例的倒數以后就可以在模型空間里進行尺寸標注了。通常將標注放在單獨的“標注”圖層,所以標注前應該在圖層下拉列表里點選“標注”圖層。
對長度尺寸進行標注用的是“線性”命令。
第一步,操作菜單“標注”→“線性”,命令行窗口提示“指定第一條尺寸界線原點或 <選擇對象>:”,點擊圖形上要標注尺寸的起始點,比如要標注矩形的長度,就在矩形的左上角上點擊鼠標。
第二步,命令行窗口提示“指定第二條尺寸界線原點:”,點擊圖形上要標注尺寸的終點,這里是點擊矩形的右上角。
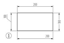
第三步,命令行窗口接著提示“指定尺寸線位置或[多行文字(M)/文字(T)/角度(A)/水平(H)/垂直(V)/旋轉(R)]:”,將鼠標向上移動一段距離后點擊一下,尺寸就標注好了,標注上的文字是AutoCAD自動測量后放上去的。如圖1中矩形上邊的尺寸標注。
點擊已經完成的尺寸標注,選中它,再右擊鼠標,在快捷菜單上有許多選項,其中“標注文字位置”非常有用,點選“置中”后文字就跑到尺寸線中間去了,比如圖1中矩形右邊標注的那樣。點選“單獨移動文字”后可以用鼠標將文字靈活地移動,比如圖1中矩形下邊標注的樣子。點選“與引線一起移動”后移動文字的時候會添加文字引線,象圖1中矩形左邊標注的那樣。
在“特性”窗口里可以對選中的標注進行非常多的修改。
圖2中左邊的標注文字原先是“90”,在“特性”窗口“文字”類別的“文字替代”文本框鍵入“%%c90”后就替換成了表示直徑的格式。在“特性”窗口“主單位”類別的“標注前綴”文本框內鍵入“%%c”也可以取得同樣的效果。
圖2中上邊的標注文字原先是“200”,在“特性”窗口“文字”類別的“文字替代”文本框鍵入“200S+0.2^-0.1”后就替換成了帶上下偏差的格式了。在“特性”窗口“公差”類別的“顯示公差”里選擇“極限偏差”,并在“公差下偏差”和“公差上偏差”文本框里分別鍵入“0.1”和“0.2”也能得到同樣的效果,由于下偏差的負號是AutoCAD自動加上的,所以當需要下偏差為正數如“+0.1”的時候,可以在“公差下偏差”里鍵入“-0.1”,負負得正,顯示的就是“+0.1”。
將“特性”窗口“直線和箭頭”類別里的“尺寸線2”和“尺寸界線2”選擇成“關”,就會得到如圖2右邊的標注那樣的效果。在“箭頭1”和“箭頭2”里還可以選擇不同樣式的箭頭。
實際上在標注的時候就可以進行文字替代了,在第三步里當命令行窗口提示“指定尺寸線位置或[多行文字(M)/文字(T)/角度(A)/水平(H)/垂直(V)/旋轉(R)]:”的時候,鍵入“t”并回車,命令行窗口隨后提示“輸入標注文字:”,此時鍵入替代的文字并回車就可以了。
標注也能夠象圖形一樣進行“拉伸”、“移動”、“旋轉”、“縮放”、“鏡像”等編輯。制圖中經常對標注用夾點進行拉伸,比如認為尺寸線離圖形過遠的時候,就可以選中尺寸線箭頭所指的夾點將它拖近一些。

